promotion

54A Alexander Avenue, Campbelltown

Overveiw

An outstanding design with elegant features.

  • Locations : 54A Alexander Ave, Campbelltown SA 5074, Australia

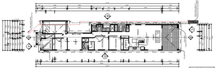
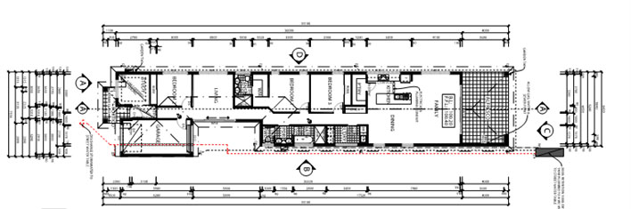
Project Detail

D 1 & 2 Site Area: 360m2

Frontage: 7.3m

House Features

  • Private Study
  • The two guest bedrooms both have built in robes
  • Master bedroom features a personalized walk in robe that also includes a private Ensuite
  • Large alfresco perfect for entertaining friends and family