Displaying a commanding façade you are greeted by the luxurious entry with a raised coffered ceiling, finest Chandeliers, LED strip lighting that spills into a substantial open area leading to the Alfresco and Courtyard for all your desired Entertainment and activities. There is Coffered ceiling throughout the house including the Master bedroom with recessed Concealed curtains tracks throughout. The guest room reaches perfection with its very own walk in robe and hidden Ensuite.

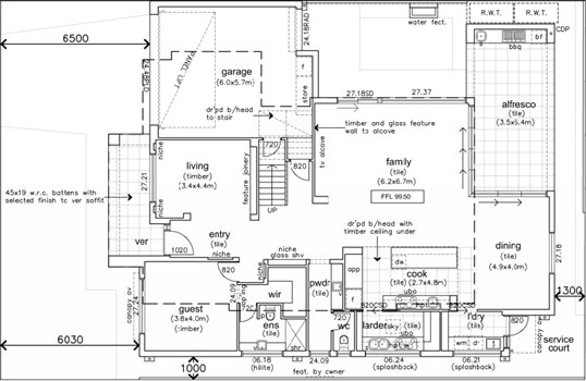
Ground Floor Plan

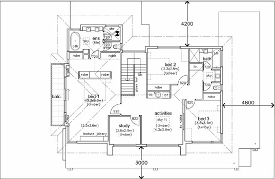
Upper Floor Plan
Site Area: 393.4m2
Frontage: 15.4m
Description
Displaying a commanding façade you are greeted by the luxurious entry with a raised coffered ceiling, finest Chandeliers, LED strip lighting that spills into a substantial open area leading to the Alfresco and Courtyard for all your desired Entertainment and activities. There is Coffered ceiling throughout the house including the Master bedroom with recessed Concealed curtains tracks throughout. The guest room reaches perfection with its very own walk in robe and hidden Ensuite.
The main kitchen is accompanied by a butler’s kitchen which oozes the feeling of high-living. The eye catching 2-tone Designer kitchen in metallic two pack finishes offers the finest Granite bench stone tops & onyx splashbacks with LED Strip lighting.
The Master bedroom is complimented by a Walk in robe, designed to perfection with two pack cabinetry door from floor to ceiling and grand luxury Ensuite, providing vast space for storage. Take time to savour the high quality beauty of this home and become captivated by finishes.
House Features